Descrizione
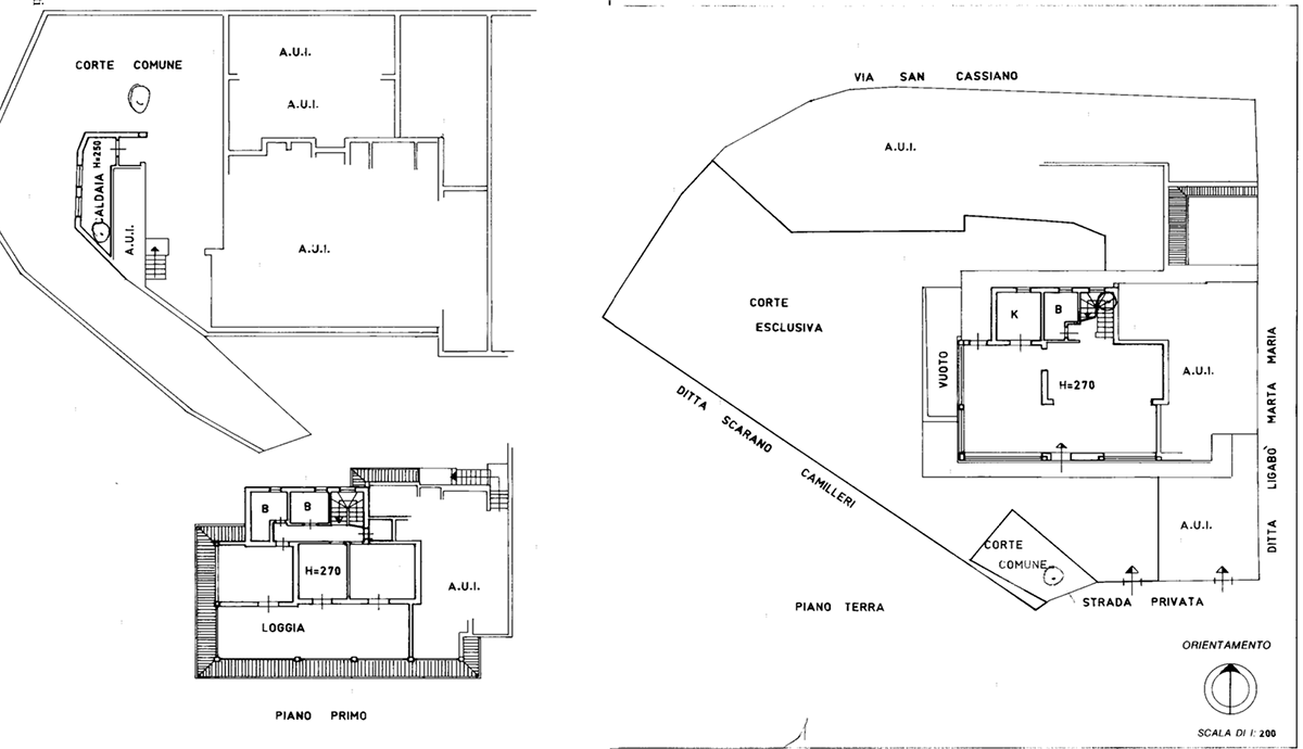
Nell’esclusiva zona residenziale di San Cassiano, a due passi dal lungolago pedonale, proponiamo in vendita porzione di villa bifamiliare indipendente tri-esposta con 300 mq di giardino esclusivo con vegetazione che abbraccia la casa. La proprietà è inserita in un contesto ben curato di 14 unità indipendenti con 2 piscine, campo da tennis e spazi verdi comuni con splendida vista lago. La villa è disposta su 2 livelli fuori terra, libera su 3 lati, in condivisione solo l’ingresso carrabile. Al piano terra si trova l’ingresso, zona living con salone doppio bi-esposto, completamente finestrato su 2 lati, cucina abitabile con accesso al giardino e area piastrellata in porfido. Sempre al piano terra si trova il primo bagno finestrato con doccia. Dalla sala con camino, si accede al primo piano attraverso una comoda scala, dove troviamo 3 camere (2 matrimoniali, 1 singola) tutte con accesso ad un’ampia zona loggiata; sullo stesso piano troviamo 2 bagni, uno con doccia e l’altro con vasca da bagno entrambi finestrati più un ripostiglio. La proprietà gode inoltre di un garage doppio e di locale caldaia con lavanderia/bagno nel piano interrato oltre ai posti auto condominiali.
Caratteristiche
- Spese annue: 1200€
- Arredi: Non Arredato
- Tipo cucina: Abitabile
- Panorama: Vista Aperta
- Mq Cantina: 10
- Solaio: 0
- Stato immobile: Buono
- Piano: 0
- Anno di costruzione: 1997
- Riscaldamento: Autonomo
- Mq Giardino: 300
- Mq Terrazzo: 35
- Livelli Interni: 2
- Unità del residence: 14
- Lati liberi: 3
- Orientamento: Sud Est
Prestazioni energetiche
- Classe energetica: F
- Prestazioni energetiche: 0 m2
- A+
- A
- B
- C
- D
- E
- F
- G
Accessori
- Parco Condominiale
- Passaggio Automobilistico
- Passaggio Pedonale
- Piscina
- Porta Blindata
Mappa
Contatti BluLake
Immobili in lista
39
Ufficio: +39 0365 1830057
Cellulare: +39 366 319 4243
WhatsApp: +39 366 319 4243
Email: info@blulake.it
























































